Pavillons et tarifs

Les pavillons de plain-pied ont une superficie de 57 m2, 77m2 et 97 m2. Ils sont destinés à des personnes de plus de 60 ans, seules ou accompagnées et également à des personnes en situation de handicap. Tous les logements sont accessibles aux personnes à mobilité réduite (PMR). Les logements modernes sont accolés en mitoyenneté afin de maitriser les dépenses énergétiques et parvenir à une "basse consommation". 

 

T3 de 77 m2 + 20 m2 de garage

 

 

maison plain-pied de 77 m2 : 2 chambres, une buanderie, une cuisine équipée; un grand espace de vie, un garage de 20m2, une terrasse avec espace privatif et aménagement extérieur, le tout sur une surface globale d'environ 240 m2. 

 

 

260 000 euros

 

 

T3 de 57 m2

 

 

maison plain-pied de 57 m2 : 2 chambres, une cuisine équipée, un grand espace de vie, une terrasse avec espace privative et aménagement extérieur, le tout sur une surface globale d'environ 140 m2. Sans garage.

 

 

163 000 euros

 

 

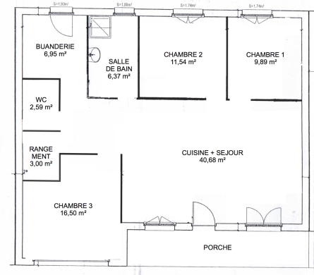
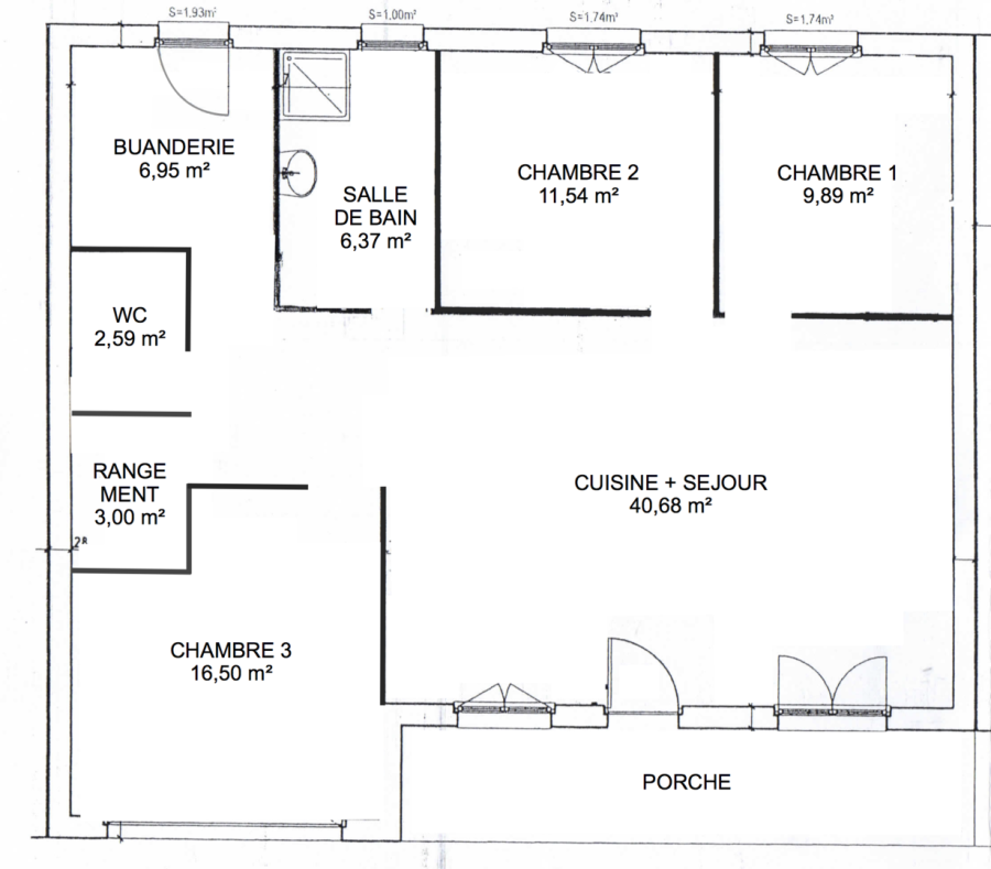
T4 de 97 m2

 

 

maison plain-pied de 97 m2 : 3 chambres, une buanderie, une cuisine équipée; un grand espace de vie, une terrasse avec espace privatif et aménagement extérieur, le tout sur une surface globale d'environ 280 m2. Sans garage.

 

 

263 000 euros

Dans notre village séniors, nous avons fait le choix de la transparence. Le prix affiché pour chaque pavillon est un prix tout inclus. Contrairement à beaucoup d'achats immobiliers classiques où de nombreux frais de finition restent à votre charge après la remise des clés, nos pavillons sont livrés entièrement terminés.

 

Voici ce qui est notamment inclus dans votre prix d'achat : 

  • la personnalisation : vous choisissez votre cuisine équipée et votre salle de bain, et nous les installons pour vous. 
  • les finitions intérieures : toutes les peintures sont faites, les sols sont posés 
  • le confort technique : plancher chauffant, volets roulants motorisés, chauffe-eau thermodynamique et panneaux solaires 
  • les aménagements extérieurs
  • les frais de viabilisation : tous les raccordemments sont effectués et les taxes liées à la construction sont déjà acquittées. 

 

Vous achetez un pavillon "prêt à habiter". 

Version imprimable | Plan du site
© Village séniors à Mars la Tour